About this property
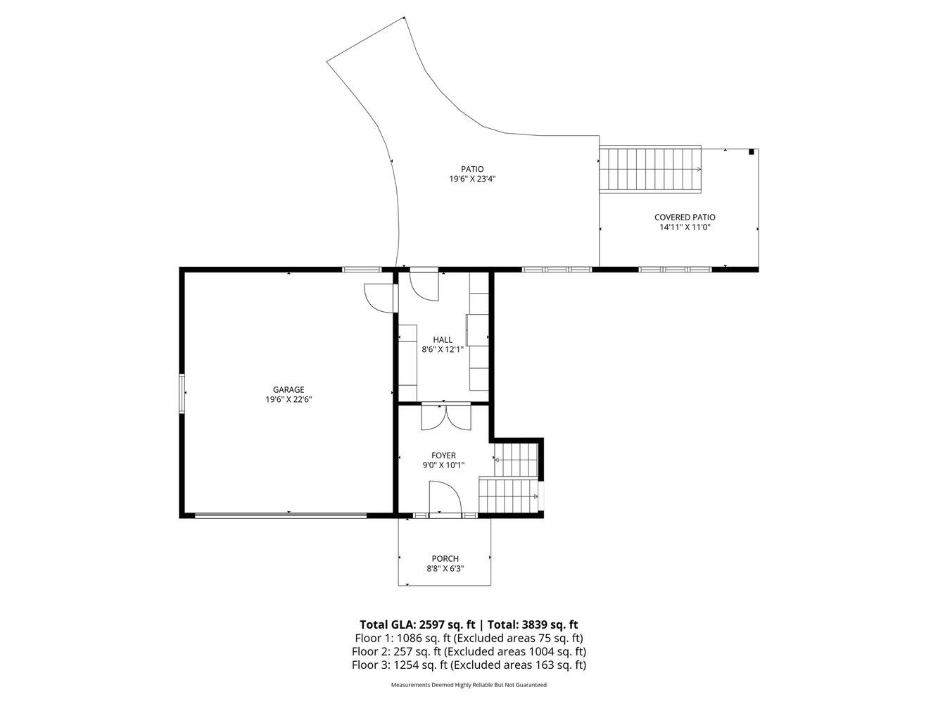
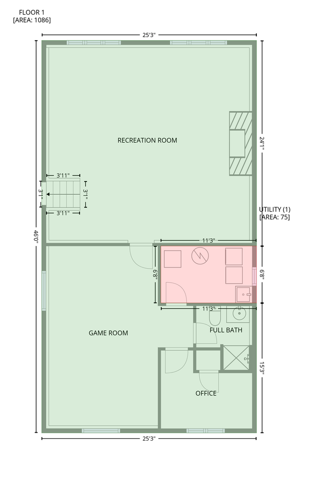
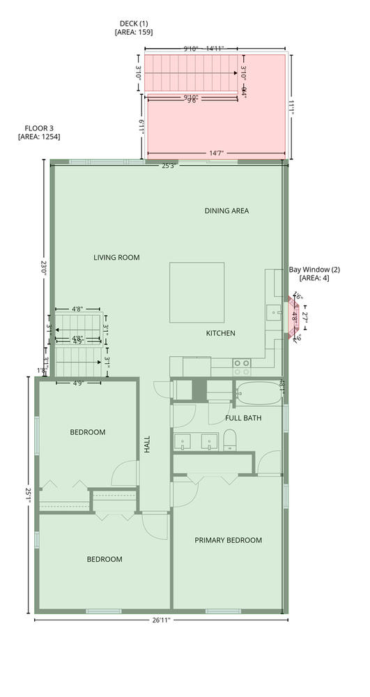
This beautifully updated 4 bedroom, 2 bathroom home sits on a rare over half acre lot just blocks from Lake Owasso in the highly sought after, award winning, Mounds View School District! Combining modern updates with an incredible outdoor retreat, it’s the perfect balance of comfort, style, and lifestyle. Step into your own backyard paradise, with a private, fully fenced yard featuring a heated inground pool, patio, and deck, plus an expansive grassy yard and wooded private bonfire area. The property also includes a charming she shed, two storage sheds, and an attached two-car garage. Whether hosting friends or enjoying quiet evenings, this home was designed for entertaining and relaxation. Inside the open main level features fully remodeled spaces: kitchen with a large center island, stainless appliances, and Quartz and Walnut countertops. You’ll love the chic bath with black subway tile, and a spacious living & dining room that leads to the refreshed deck. Plus, three bedrooms on the same level! The mud room has in-floor radiant heating and a separate refrigerator. The lower level family room has a cozy fireplace. You’ll love the additional rec space and updated second bath. The lower level bedroom also doubles as the perfect office. The attached garage has overhead storage. This home comes with private beach access at Lake Owasso through the North Owasso Association (no annual dues)!… Read MoreYou can walk or bike to local parks including Bobby Theisen Park with 9 new pickleball courts and you’ll have quick access to freeways and all the amenities that Shoreview has to offer. It really does have it all with thoughtful updates, comfortable spaces, and outdoor amenities you can enjoy year-round. Simply move-in and enjoy!Read Less
Sold
$549,000
Bedrooms
4
Bathrooms
2
Square Ft.
2,597
Floors
Split Entry (Bi-Level)
Garages
2
Acres
0.564
Year Built
1970

Schedule a tour
Take a tour
Video Tour
Virtual Tour
Interested in
3418 Owasso Street
Confirm your time
Fill in your details and we will contact you to confirm a time.
Contact Form
Welcome to our open house!
We encourage you to take a few seconds to fill out your information so we can send you exclusive updates for this listing!





































































































































































