About this property
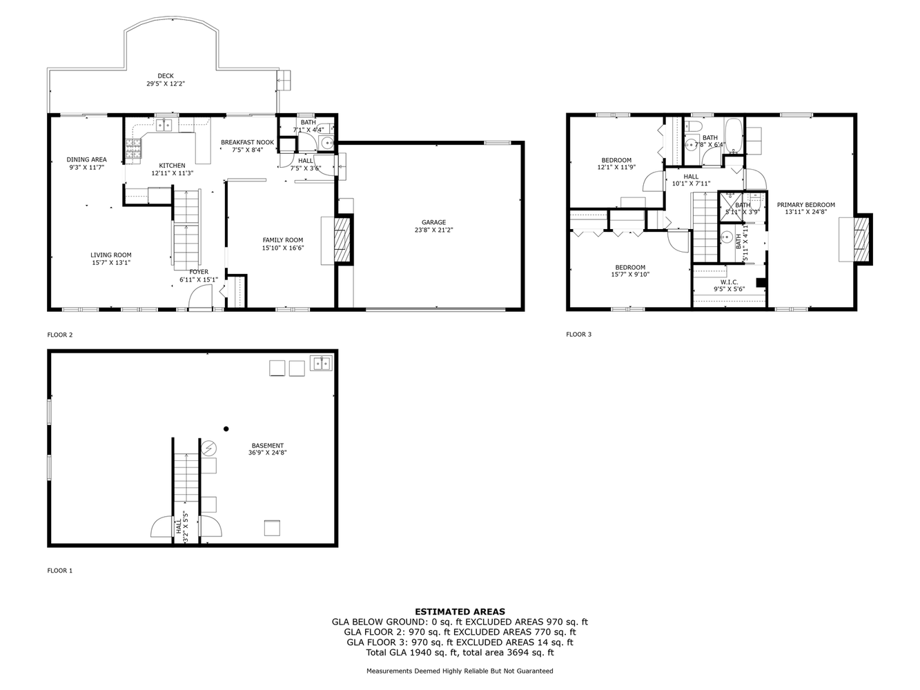
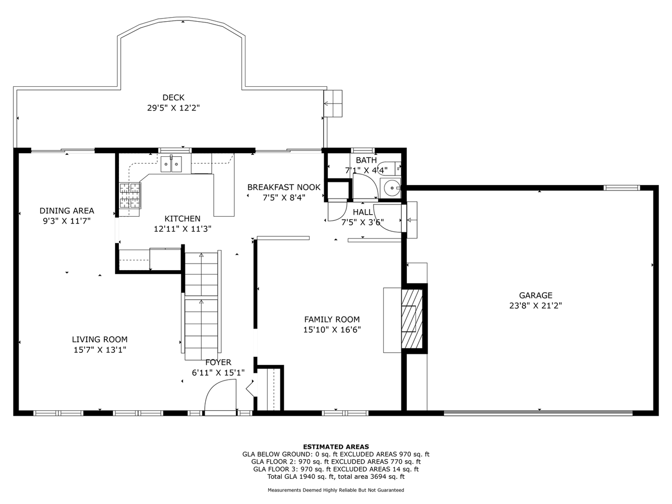
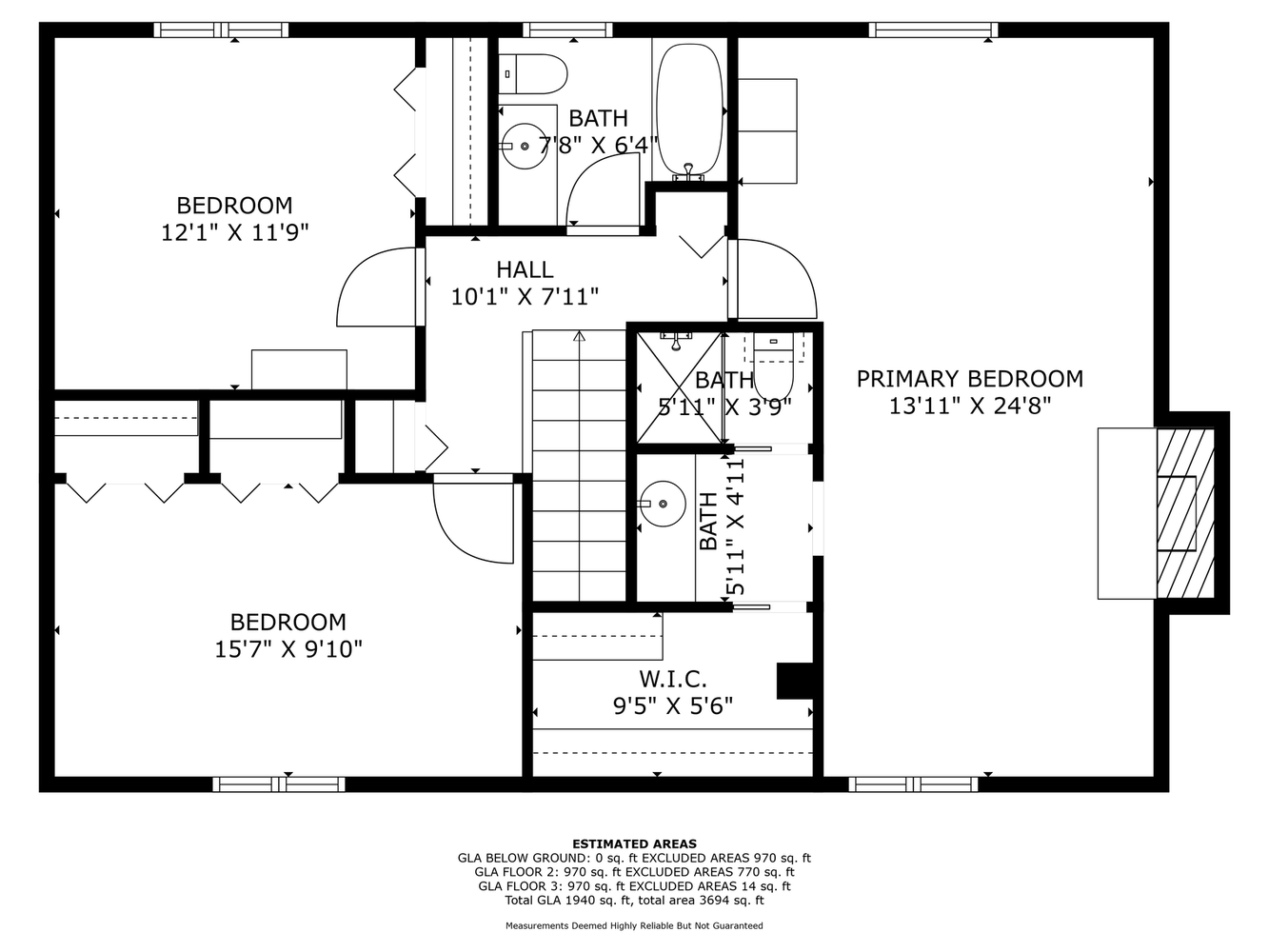
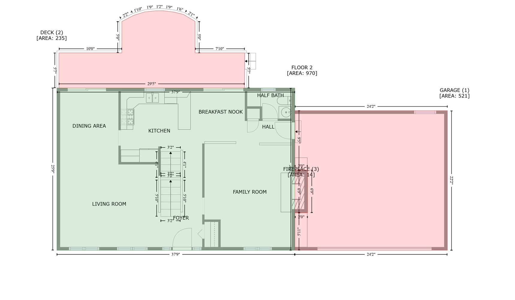
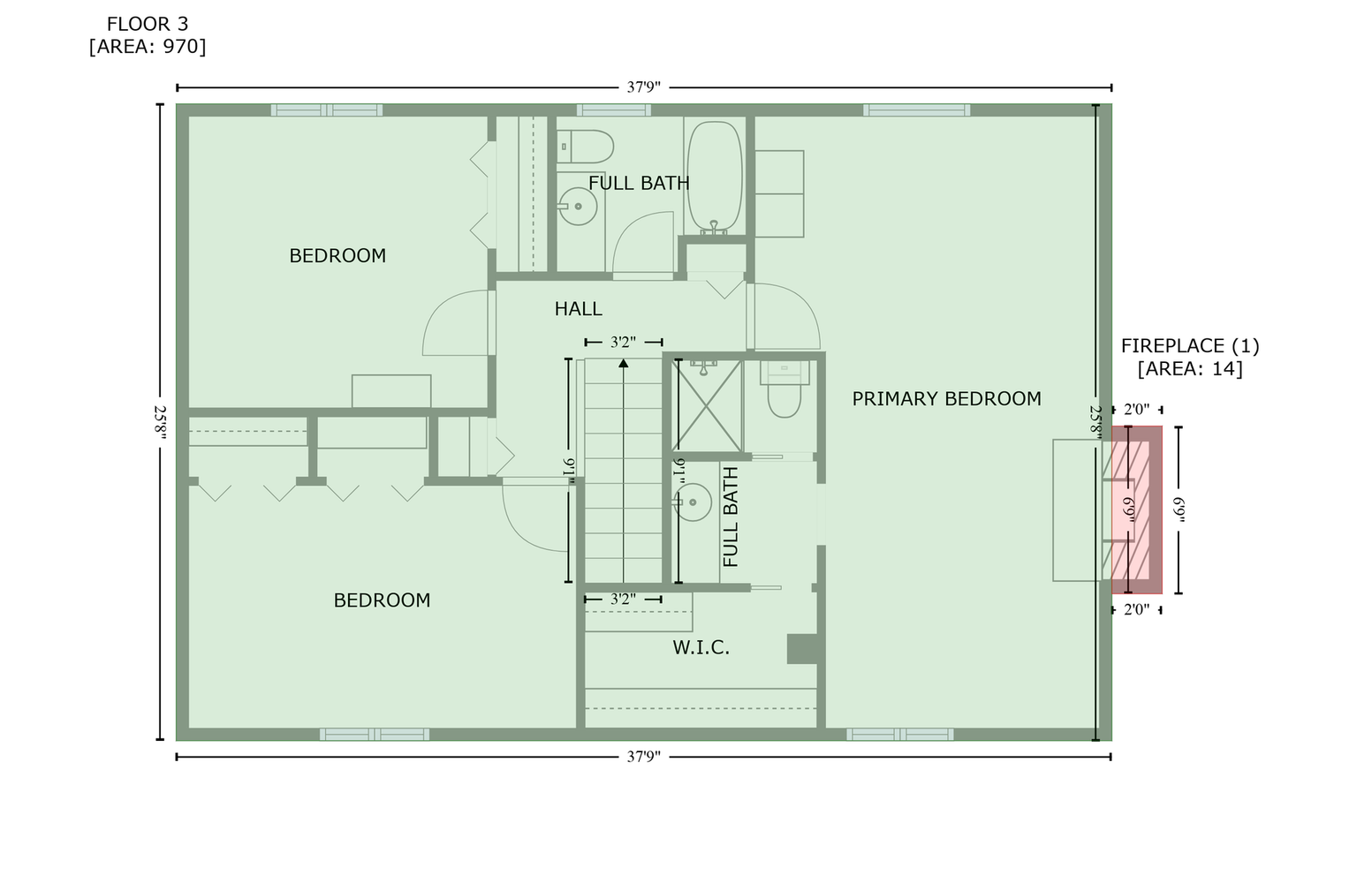
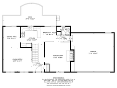
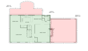
Beautiful Two-Story Home on Rare Oversized Lot Just Steps to the River! Nestled on a picturesque, 82-foot wide lot in a highly sought-after historic one block street, this two-story home offers a rare blend of space, character, and location. Just steps from the Mississippi River and minutes from parks, restaurants, coffee shops, and transit, this property is a true gem in the heart of the city. Inside, the home has features that are hard to find in the neighborhood. Starting with a main floor living room and a family room with a gas-burning fireplace, perfect for relaxing or entertaining. A formal dining room and a spacious eat-in kitchen each feature patio doors leading to a large deck and fenced backyard. Gorgeous hardwood floors run through the living and dining areas, and a convenient main-floor half bath and dual coat closets provide thoughtful functionality. Upstairs, an elegant open center staircase leads to three comfortable bedrooms, including a generous primary suite complete with a walk-in closet, ¾ bath, and its own gas fireplace. Two hallway linen closets and a full shared bath complete the upper level. Additional highlights include a large attached two-car garage with a level 2 electric charger, an unfinished basement offering abundant storage and future expansion potential, and a beautifully sized shaded park-like yard that invites endless opportunities for gardening, entertaining, or simply enjoying… Read Morethe outdoors. With its prime location near the river, access to Minnehaha Falls, light rail, the University of Minnesota, and both downtown Minneapolis and St. Paul—this is a rare opportunity you won’t want to miss. Schedule your private showing today and experience all this exceptional property has to offer!Read Less
Sold
$629,900
Bedrooms
3
Bathrooms
3
Square Ft.
2,014
Floors
2
Garages
2
Lot Size
9,148 Sq Ft Lot
Year Built
1974

Schedule a tour
Take a tour
Video Tour
Virtual Tour
Interested in
4600 Glabe Lane
Confirm your time
Fill in your details and we will contact you to confirm a time.
Contact Form
Welcome to our open house!
We encourage you to take a few seconds to fill out your information so we can send you exclusive updates for this listing!







































































































































