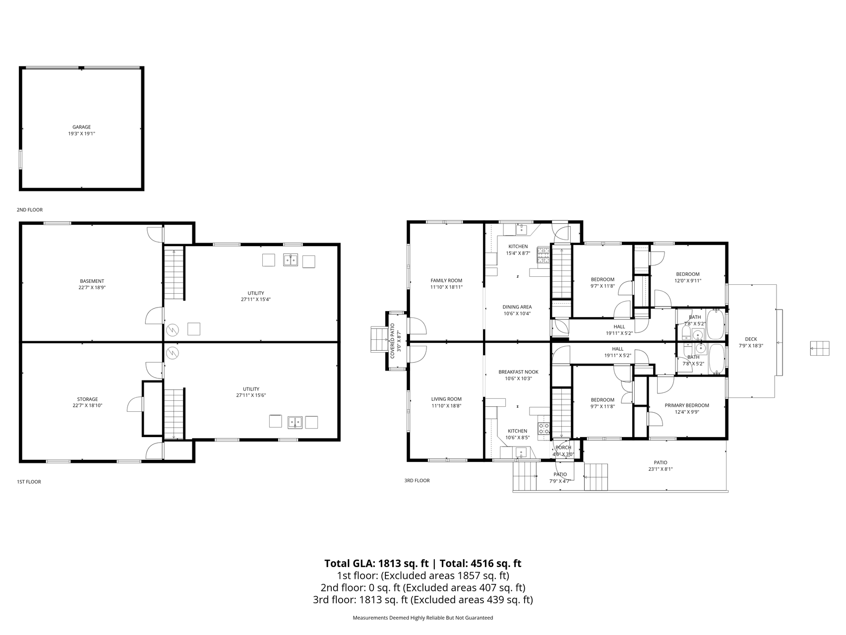
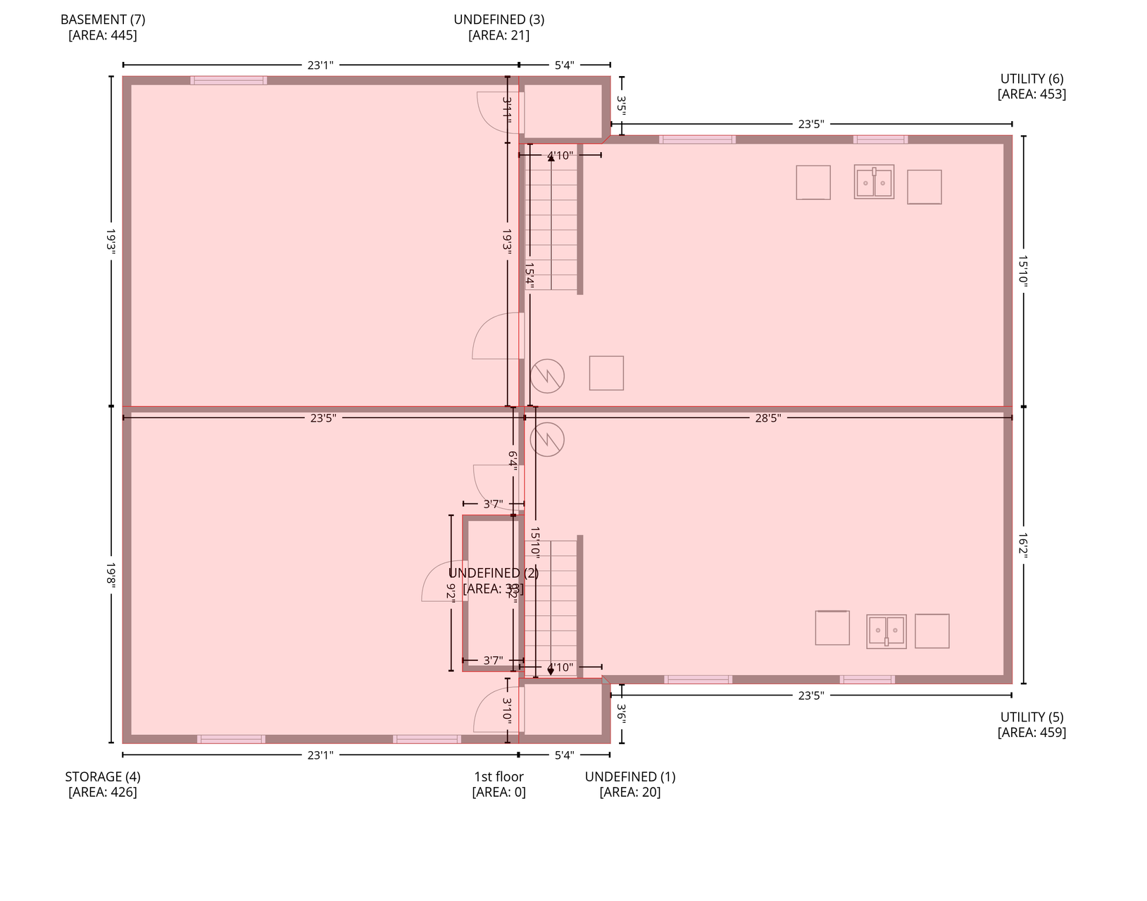
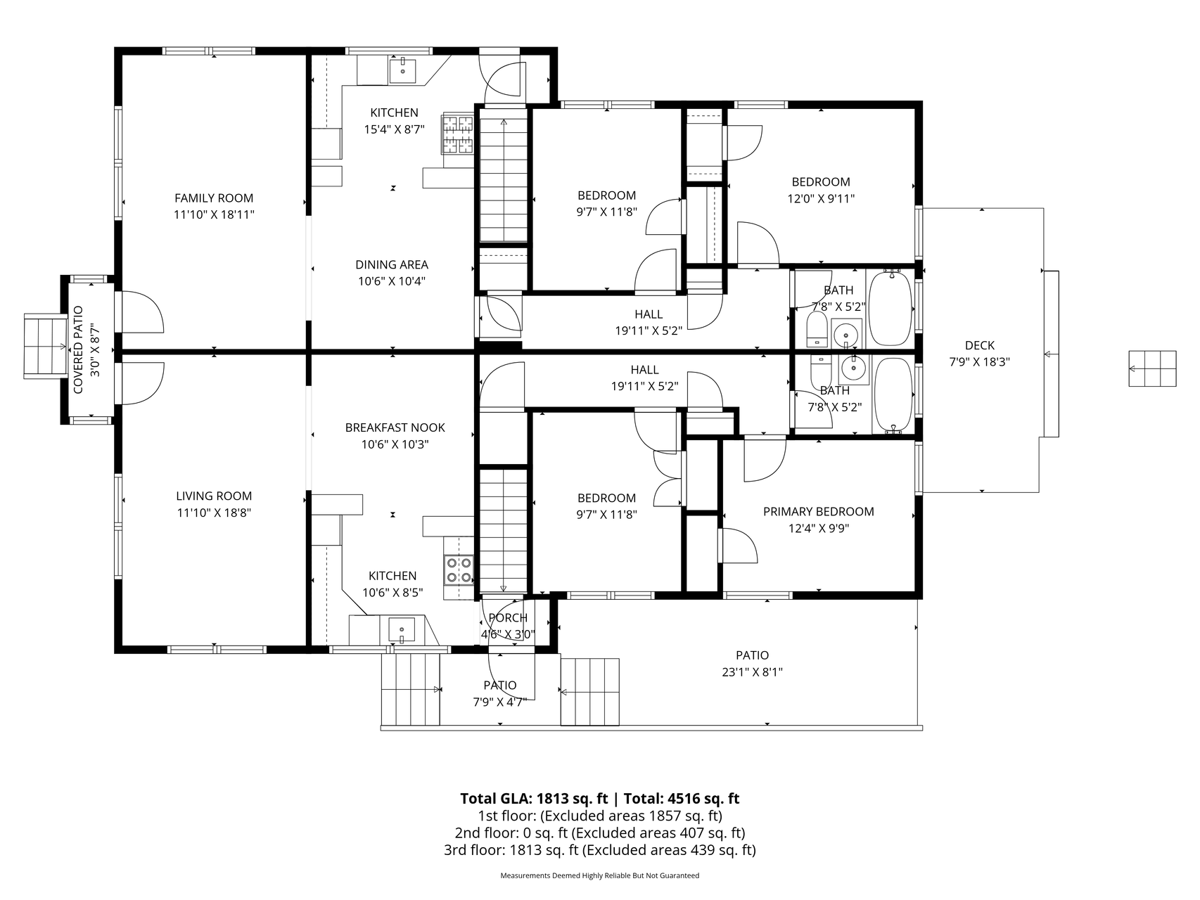
About this property
Welcome to 5508 and 5510 Chicago Ave, a charming, classic all brick side by side duplex perfectly situated between Diamond Lake and Lake Nokomis. This beautiful property has timeless character with strong investment potential, making it an excellent opportunity for both homeownership and as an investment. Each unit has two bedrooms and a full bathroom, along with hardwood floors throughout. The layout of each unit is nearly identical, yet the updates and design of each space bring individuality and appeal. Separate basement areas (one side is partially finished) offer added privacy along with additional storage or potential for future use if finished to maximize space. With a fully fenced landscaped back yard and a nice cozy deck, this home offers great space to relax and enjoy the warmer months. Located just one block north of Todd Park and a few blocks from Pearl Park, this home has easy access to provide a great outdoor lifestyle while being within city limits. Occupants will also appreciate the walkable proximity to Lake Nokomis and Minnehaha Parkway, along with Kowalski’s, local shops and restaurants. The location offers convenient access to major roadways like 77, 62, and 35W and is just a short drive to the airport, making travel simple and efficient. Renting one unit will be easy because the current owner plans to stay on as a renter. You… Read Morewill have an opportunity to meet with the current owner before purchasing the duplex. This duplex delivers on location, character, and long term value!Read Less
For Sale
$474,900
Bedrooms
4
Bathrooms
2
Square Ft.
2,386
Floors
One
Garages
2
Acres
0.140
Year Built
1939

Schedule a tour
Interested in
5508 Chicago Ave
Confirm your time
Fill in your details and we will contact you to confirm a time.
Contact Form
Welcome to our open house!
We encourage you to take a few seconds to fill out your information so we can send you exclusive updates for this listing!



















































































































